REF-015
Maisons
Vente
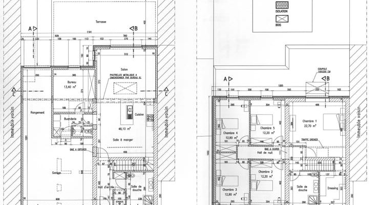
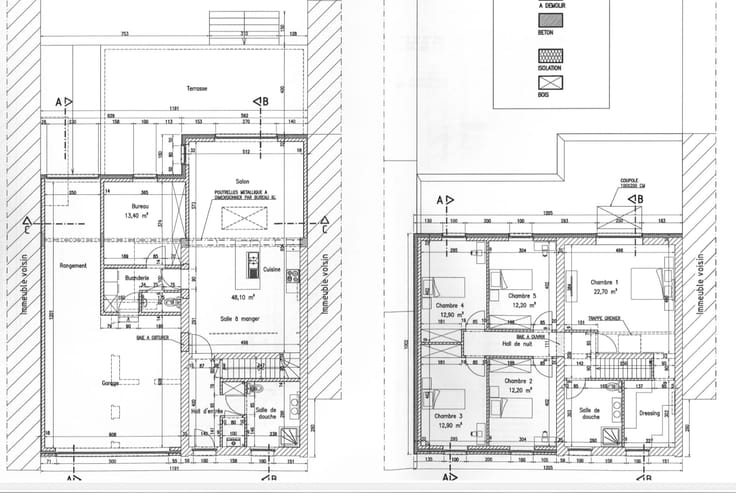
Maison trois façades à rénover avec jardin – Permis accepté pour maison cinq chambres Située dans une rue très calme, au sein d’un environnement agréable et verdoyant, cette maison trois façades bénéficie d’un cadre de vie paisible tout en offrant une excellente accessibilité. L’accès à l’autoroute se trouve à environ deux minutes en voiture, permettant de concilier calme résidentiel et facilité de déplacement au quotidien. Le bien est à rénover et dispose d’un permis de bâtir accepté pour la transformation en une spacieuse maison unifamiliale cinq chambres. Le projet autorisé met l’accent sur des volumes généreux et une distribution moderne, laissant à l’acquéreur la liberté de personnaliser l’ensemble selon ses besoins. ⸻ Maison – Projet selon permis accepté Disposition projetée : Au rez-de-chaussée : • Hall d’entrée, • WC séparé, • Salle de douche, • Grand espace séjour comprenant : • Salon, • Salle à manger, • Cuisine, • Buanderie, • Bureau, • Garage pour deux voitures, • Espaces de rangement complémentaires. Au premier étage : • Hall de nuit, • Cinq chambres, • Dressing séparé et commun, • Salle de douche. ⸻ Maison – État actuel Disposition actuelle : Au rez-de-chaussée : • Salon, • Salle à manger, • Cuisine séparée, • Buanderie, • Hall / espace de circulation avec escalier vers l’étage. Au premier étage : • Hall de nuit, • Deux chambres. ➡️ L’état actuel constitue une base saine à rénover, entièrement repensée dans le cadre du permis accordé. ⸻ Extérieurs • Jardin, • Environnement calme et agréable, • Espaces extérieurs à aménager selon le projet. ⸻ Points importants • Maison trois façades, • Rue calme, cadre verdoyant, • Accès autoroutier à ± 2 minutes en voiture, • Bien à rénover, • Permis de bâtir accepté, • Fort potentiel de valorisation. ⸻ Pour plus d’informations ou pour consulter les plans et le permis, contactez-moi : Matteo Carpenito (IPI 515 583) VENTE-IMMO +32 0475 25 45 45 +32 0498 33 82 23 ✉️ matteo@vente-immo.com
